서울시 강남구 청담삼익아파트 재건축사업으로 롯데캐슬에서 분양하는 ‘청담르엘’이 조합원 대상으로 모델하우스를 오픈하였다.
지하철 7호선 청담역인 초역세권 한강뷰 아파트로 롯데건설의 하이엔드 브랜드인 '르엘'로 아파트 이름이 정해졌다.
서울시 강남구의 민간 분양은 2020년 7월 이후 약 3년 만에 총 1261 가구 중 176 가구가 일반 분양된다.

강남구는 여전히 '분양가상한제' 적용지역이라 주변시세 대비 합리적인 가격으로 고가점자들의 경쟁이 치열할 것으로 주목되고, 분양가는 3.3㎡당 6000만 원대로 예상된다.
◈ 강남 '청담르엘' 롯데캐슬 홈페이지
서울시 강남구 청담동 134-18 일원의 청담삼익아파트 주택재건축으로 롯데캐슬에서 2023년 하반기 분양을 앞두고 조합원 대상의 모델하우스가 오픈이 되었다.
조합원분양가는 59타입은 12억대~, 84 타입은 16억대~라고 하는데 일반분양가는 추후 입주자모집공고문이 나와야 정확하게 알 수 있으며, 평당 6천~7천만 원으로 예상하고 있다.
단지 옆에 위치한 청담자이 아파트의 경우 82타입이 약 29억의 호가를 보여, 청약에 당첨이 된다면 약 10억의 시세차익을 볼 수 있다.

◈ 청담삼익 롯데캐슬르엘 사업개요
| 단지명 | 청담 르엘 |
| 규모 | 지하4층~지상 35층, 9개동, 1,261세대 (일반분양 176세대) |
| 위치 | 서울시 강남구 청담동 134-18 일원 |
| 분양시기 | 2023년 하반기 예정 |
| 사업형태 | 재건축 |
| 입주시기 | 2025년 9월 예정 |
| 시행사 | 청담삼익아파트 주택재건축정비사업조합 |
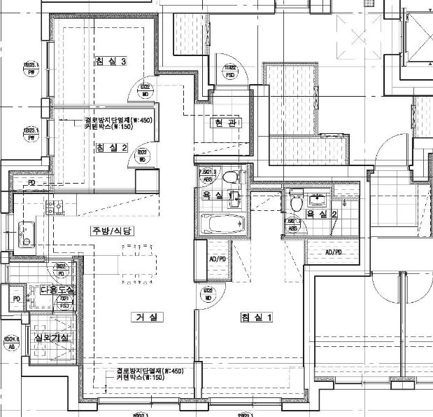
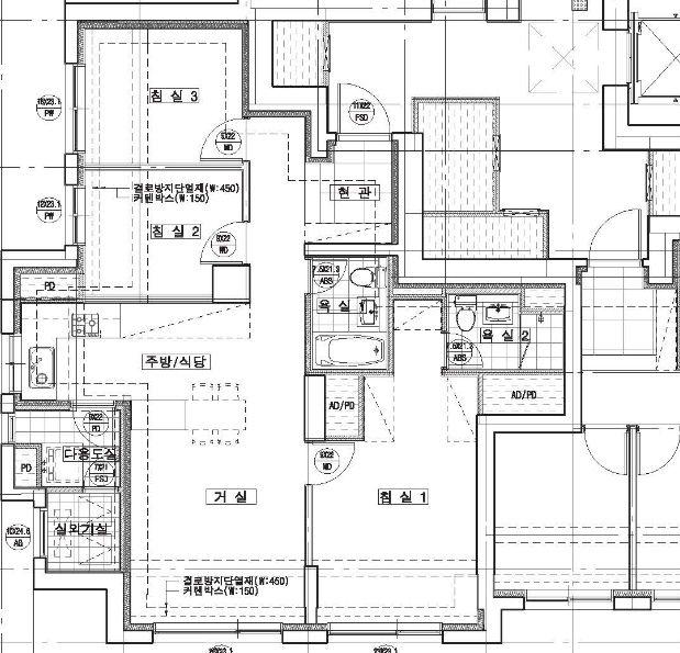
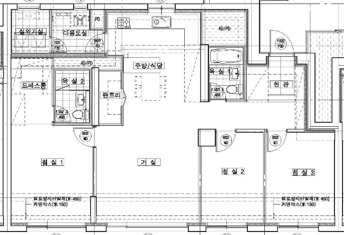
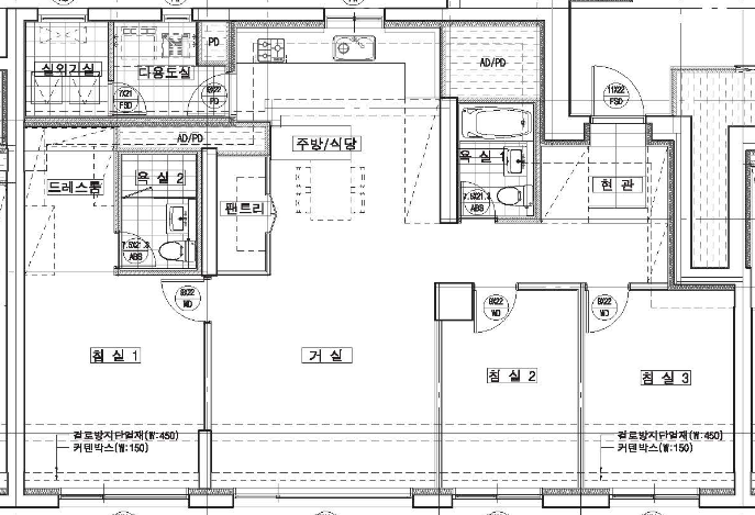
얼마 전 조합원 동호수 추첨을 마친 청담삼익롯데캐슬르엘은 49, 59, 84, 97, 111, 136, 151, 171㎡ 이상 펜트하우스까지 다양한 평형으로 구성되어 있다.
| 전용면적㎡ | 분양세대 |
| 49 | 30 |
| 59 | 264 |
| 84 | 479 |
| 97 | 208 |
| 111 | 172 |
| 136 | 58 |
| 151 | 46 |
| 171~235 | 4 |
| 합계 | 1,261 |
청담르엘 일분 평당 가는 약 6,000만 원으로 예상됩니다. 전용면적 59형 분양가는 16억, 84형 분양가는 20억 전후가 될 것으로 보입니다.
◈ 청담르엘 모델하우스 위치 및 분양가
현재 조합원만 모델하우스 관람이 가능하며 2023년 하반기에 모집공고문이 발표된 후 일반 관람 예정이다.
모집공고문이 아직 발표되지 않아 정확한 분양가는 추후 확인하시기 바랍니다.
(예측되는 평당가는 최소 6천만 원으로 59 타입은 16억 원대, 84 타입이 20억 원대로 예상한다고 합니다.)
롯데캐슬 고객센터 대표번호 ☎ 1688-5500

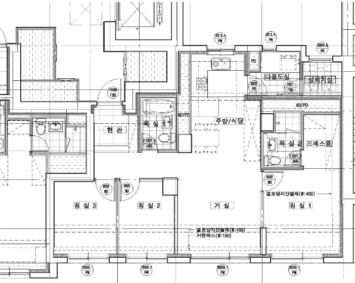
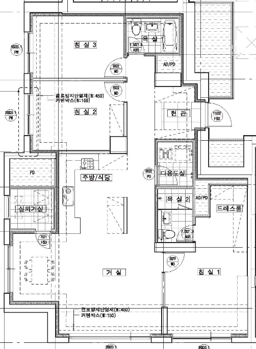
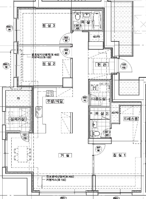
◈ 청담르엘 59, 84평면도 및 입지안내
청담르엘은 전 세대의 70% 이상에서 한강 영구 조망이 예상되고, 강남에서 9년 만에 선보이는 한강 조망 아파트라는 점과 워낙 일반 문양의 물량이 적어 고분양가임에도 불구하고 주변 가격 대비 확실히 저렴하고 뛰어난 입지 갖춰 청약 경쟁이 예상됩니다.




7호선 청담역 초역세권에 위치하며 위례신사선 예정으로 더블역세권과 직주 환경 완벽하게 갖춰 청덤역 도보 10분, 역삼역 20분, 강남역 25분으로 교통을 따지는 의미가 없을 정도의 최상의 프리미엄 입지 갖춘 지역입니다.
코엑스, 갤러리아 백화점, 현대백화점 본점, 종합병원 모두 3km 이내에 위치해 편의시설 역시 완벽하게 갖췄습니다.
봉은초등학교, 봉은중학교를 비롯해 언주중, 청담중, 경기고, 영동고, 청담고의 뛰어난 학군으로 교육 환경도 우수합니다.
댓글